Print Page     Save As PDF     Email PDF
Email PDF
* Enter your name

* Enter your email address

* Enter email addresses

Send a note with the email

669 Seaman Avenue, Baldwin, NY 11510

$724,200 Sold Price
Sold on 11/24/2025
4 Beds
2 Baths
1562 SF
Built In 1954
 
Listing ID 11588379
Property Type Residential
County Nassau
School Baldwin
Total Tax $14,560
Tax ID 2089-36-411-00-0799-0
FEMA Flood Map fema.gov/portal
Year Built 1954
Virtual Tour
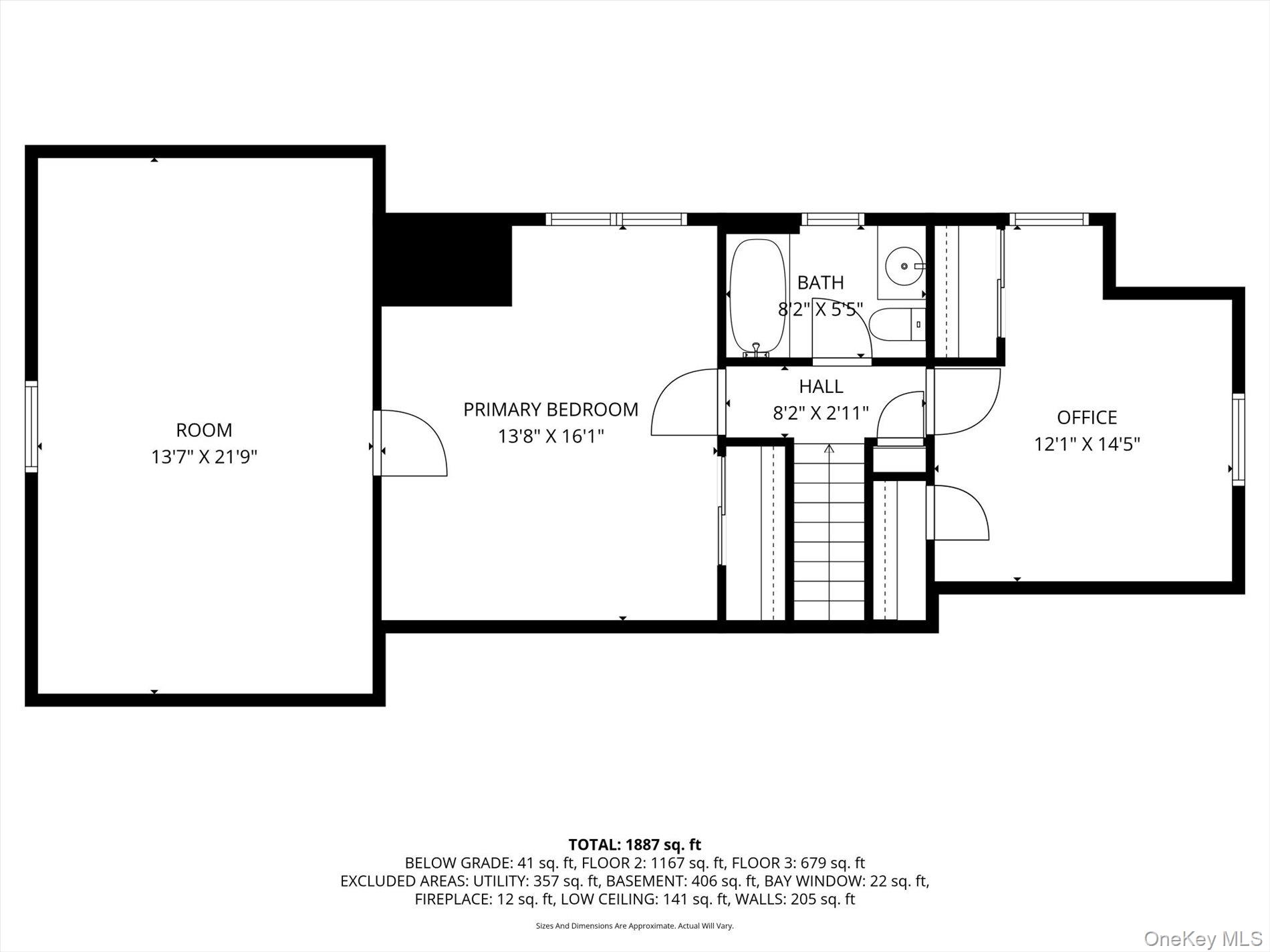
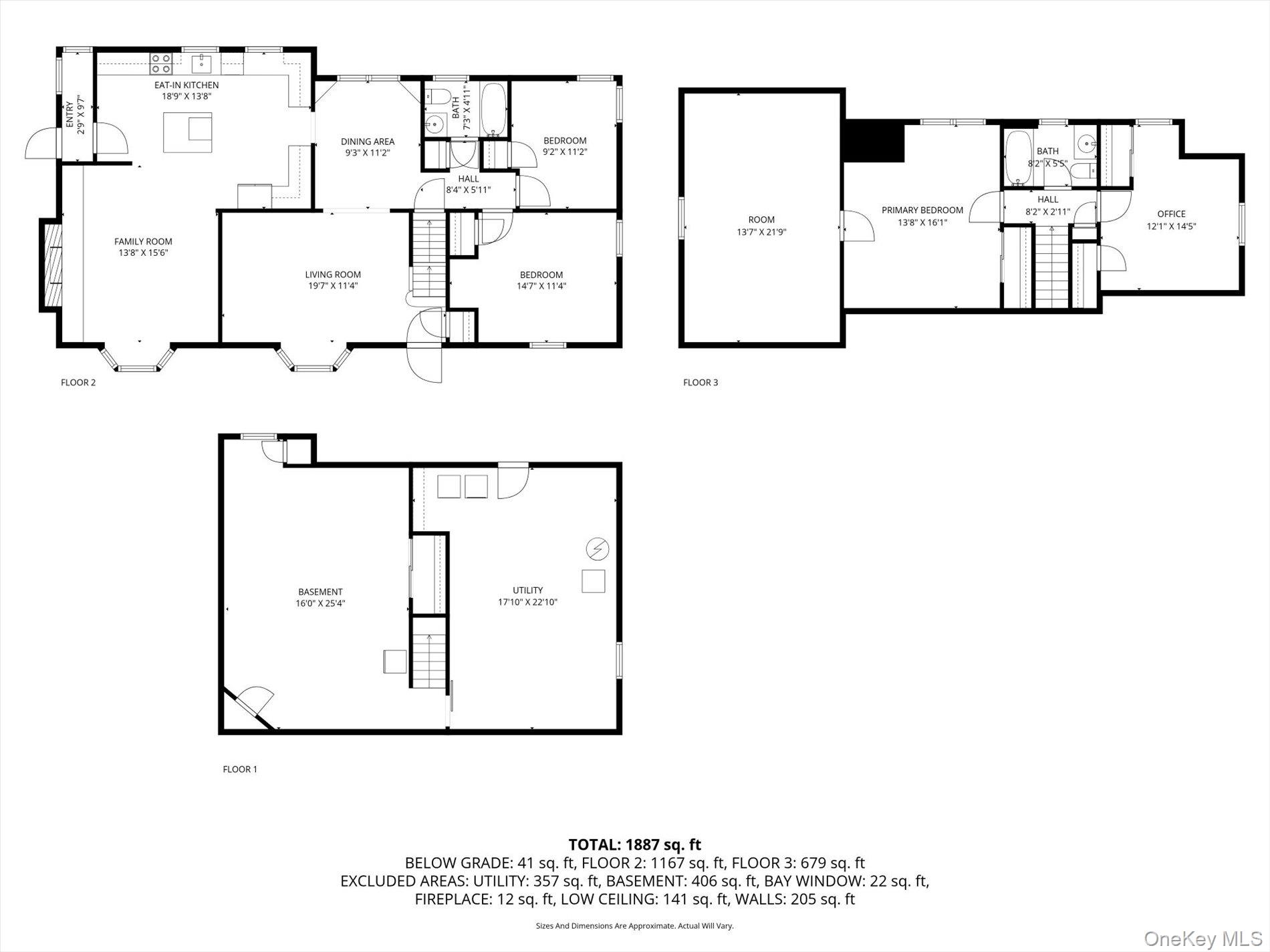
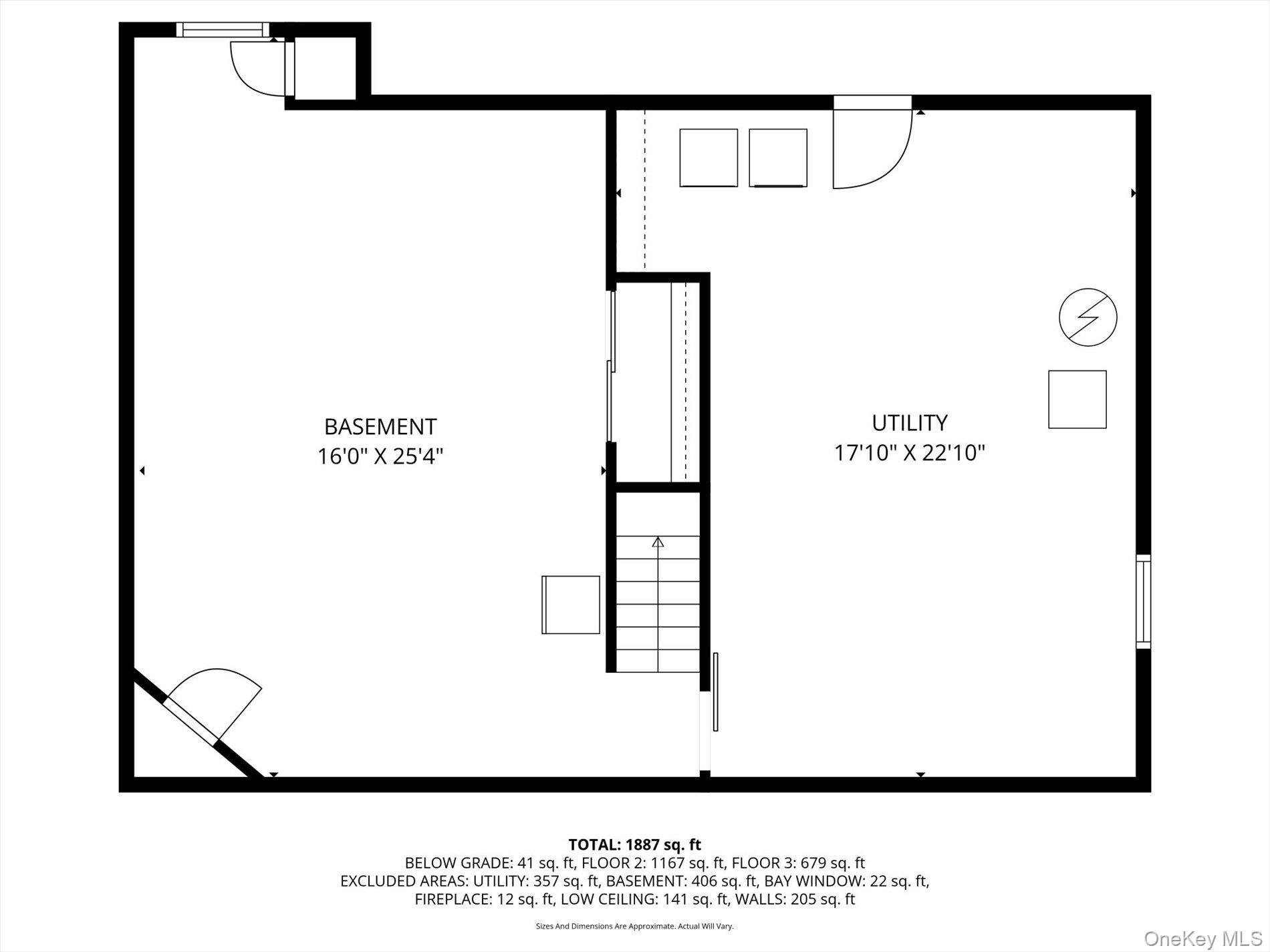
Welcome To This Beautifully Maintained Expanded Cape Featuring Four Spacious Bedrooms And Two Full Baths. The Home Offers A Bright New Kitchen With Stainless Steel Appliances, A Formal Living Room, A Cozy Den, And A Formal Dining Room Perfect For Entertaining. There's Also A Versatile Bonus Room And Plenty Of Storage Throughout. Enjoy Hardwood Floors, A Finished Basement With An Outside Entrance And Updated 200-Amp Electric Service. The Home Also Features A Newer Roof, A Clean Manicured Yard And A Private Fenced Property With Great Curb Appeal. A Private Driveway Provides Ample Parking, Completing This Move-In Ready Home That Blends Comfort, Functionality And Charm.
Property Details
  • 4 Total Bedrooms
  • 2 Full Baths
  • 1562 SF (AG)
  • 0.15 Acres
  • 6642 SF Lot
  • Built in 1954
  • Cape Cod Style
  • Lower Level: Finished, Walk Out
Interior Features
  • Oven/Range
  • Refrigerator
  • Dishwasher
  • Microwave
  • Washer
  • Dryer
  • Stainless Steel
  • Hardwood Flooring
  • 9 Rooms
  • Entry Foyer
  • 1 Fireplace
  • Baseboard
  • Hot Water
  • Natural Gas Fuel
Exterior Features
  • Brick Siding
  • 1 Garage Space
  • Community Water
  • Community Septic
Taxes and Fees
  • $14,560 Total Tax
Sale Information
  • Sold on 11/24/2025
  • Sold for $724,200
Previously Listed By
Signature Premier Properties
Signature Premier Properties
Listing data is deemed reliable but is NOT guaranteed accurate.
Contact Us
Who Would You Like to Contact Today?

I want to contact an agent about this property!

I wish to provide feedback about the website functionality

Contact Agent
Your Name:
Email:
Phone:
Message:
Security: What is 5 minus 3?