Print Page     Save As PDF     Email PDF
Email PDF
* Enter your name

* Enter your email address

* Enter email addresses

Send a note with the email

44 Croft Lane, Smithtown, NY 11787

$1,150,000 Sold Price
Sold on 11/18/2025
3 Beds
3.5 Baths
3197 SF
Built In 1999
 
Listing ID 11514976
Property Type Residential
County Suffolk
School Smithtown
Total Tax $21,954
Tax ID 0800-126-00-03-00-024-000
FEMA Flood Map fema.gov/portal
Year Built 1999
Virtual Tour
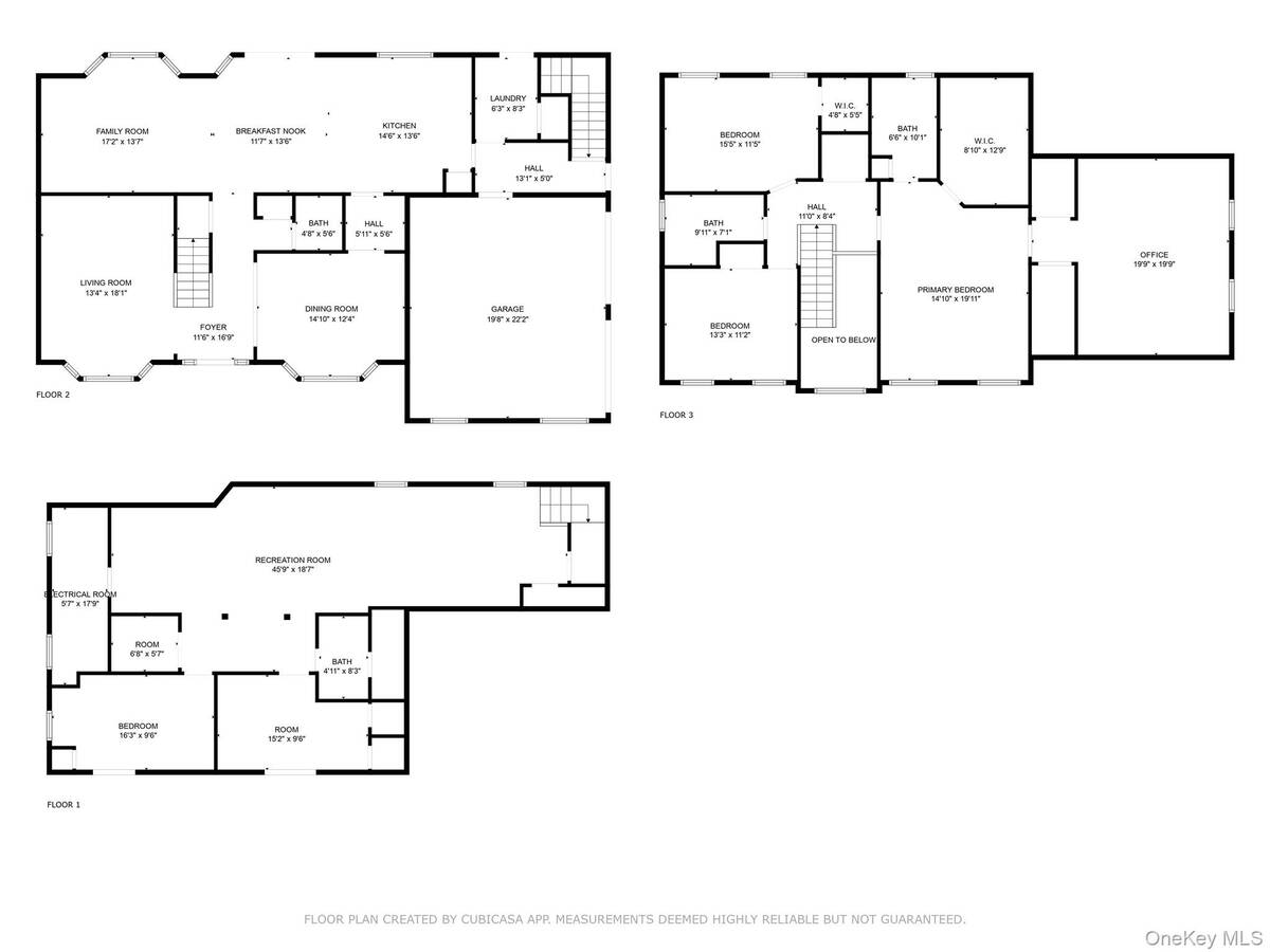
Welcome to 44 Croft Lane located in the Smithtown Pines section of Smithtown! A stunning Colonial built in 1999, ideally situated on 1.35 Acres in the heart of horse country. This exceptional property is adjacent to Byldenburgh Park, offering direct access to miles of scenic riding and hiking trails. Step inside to a grand 2 story foyer that leads to a formal living room and formal dining room. The spacious eat in kitchen features stainless steel appliances, a butlers pantry, and flows into a cozy den that is perfect for relaxing or entertaining. Additional 1st floor highlights include a laundry room, mudroom and powder room. The Expansive primary ensuite includes walk in closets ,a full bath, and a large bonus room ideal for a home office or nursery. Two additional generously sized bedrooms and a full bath complete the 2nd floor. Hardwood floors run throughout, and storage is abundant with tons of closets. The full finished basement provides flexible guest space or recreational areas. Additional features include a 2 car garage, 4 zone oil heat, 2 zone central air, and 6 zone in ground sprinklers. Enjoy Summer in the beautiful 18X36 heated salt water pool surrounded by paver patio all within a fully fenced yard. This unique equestrian property is zoned for 3 horses with each stall offering in and out paddocks, heated Nelson automatic waterer's, a 100X110 lit sand riding arena with new footing, a tack room, 4 ton hay barn, wash stall with hot water, and 4 new frost free hydrants. Updates include Brand new roof, gutters, shutters and storm doors installed August 2025. True taxes $21,953. This is the one you have been waiting for!~
Property Details
  • 3 Total Bedrooms
  • 3 Full Baths
  • 1 Half Bath
  • 3197 SF (AG)
  • 1.35 Acres
  • 58806 SF Lot
  • Built in 1999
  • Colonial Style
  • Lower Level: Finished, Walk Out
Interior Features
  • Oven/Range
  • Refrigerator
  • Dishwasher
  • Microwave
  • Washer
  • Dryer
  • Stainless Steel
  • Hardwood Flooring
  • 10 Rooms
  • Entry Foyer
  • Walk-in Closet
  • Oil Fuel
  • Central A/C
Exterior Features
  • Vinyl Siding
  • 2 Garage Spaces
  • Community Water
  • Other Waste Removal
  • Pool
  • Deck
  • Patio
  • Open Porch
  • Equestrian
  • Barn
  • Stable
Taxes and Fees
  • $21,954 Total Tax
Sale Information
  • Sold on 11/18/2025
  • Sold for $1,150,000
Previously Listed By
Eric G Ramsay Jr Assoc LLC
Eric G Ramsay Jr Assoc LLC
Listing data is deemed reliable but is NOT guaranteed accurate.
Contact Us
Who Would You Like to Contact Today?

I want to contact an agent about this property!

I wish to provide feedback about the website functionality

Contact Agent
Your Name:
Email:
Phone:
Message:
Security: What is 10 plus 1?